296B-S Проект бассейна (пристройка к коттеджу), с террасой на крыше

Автор проекта: В. Тарасов
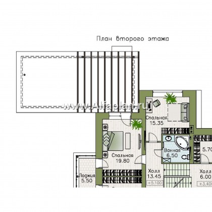
  • Общая площадь дома:71.93 м²
Стоимость проекта:
  • Архитектурно-строительные чертежи (АС)    28 800 ₽
  • Внутренние инженерные системы (ИС) отопление, водопровод, канализация, электрооборудование    По дог.
  • Разбивочный план вашего участка    6 000 ₽
  • Дополнительная копия проекта    2 500 ₽
  • При покупке проекта дома можно выбрать три бесплатных опции (проекта), посмотреть проекты)    1 ₽
  • Доставка по России бесплатно, в страны СНГ    По дог.
Стоимость, дополнительные опции только для проектов Тарасова В.А.:
  • Электронная копия в формате PDF     5 000 ₽
  • Корректировка Паспорта проекта
    (в зависимости от пожеланий)   
    По дог.
  • Корректировка конструкций дома
    (в зависимости от пожеланий)   
    По дог.
  • Разработать установку скрытых алюминиевых роллет (опция, отдельный альбом)    1 ₽
Заказать проектПоложить в мои желания
Спасибо за обращение к нам, в ближайшее время мы вам ответим

Архитектурные проекты домов и подробные строительные чертежи. Готовые проекты: 1. не предназначены для строительства в СЕЙСМИЧЕСКИ АКТИВНЫХ РАЙОНАХ, а фундаменты - в условиях ВЕЧНОЙ МЕРЗЛОТЫ, 2. требуют Привязки к конкретному участку строительства. Смотрите страницу СОСТАВ ПРОЕКТА ДОМА.

Авторский дизайн фасадов и комфортные планировки коттеджей, тысячи построенных домов - доверьте нам проект вашего идеального дома вдали от городской суеты.

Общая площадь дома 71.93 м²

Проект бассейна (пристройка к коттеджу), с террасой на крыше - технические характеристики

Тип фундамента монолитная ж/б плита
Тип наружных стен керамический кирпич
Тип перекрытий монолитная ж/б плита
Тип кровли наплавляемый гидроизоляционный ковер
Наружная отделка стен облицовочный камень
Наружная отделка цоколя облиовочный камень
Гараж Без гаража
Утеплитель минеральная вата

Описание проекта

Проект бассейна (пристройка к коттеджу), с террасой на крыше

Постоянные АКЦИИ, подробней: (ССЫЛКА)

Сервис для заказчиков

  • Сервис
    для заказчиков

    Внесение изменений в проекты

    Подробнее
  • Корректировка
    конструкций

    Изменение фундамента, перекрытий, теплые полы

    Подробнее
  • Планировка
    участка

    Разбивочный план, благоустройство, озеленение

    Подробнее
  • Индивидуальное
    проектирование

    Разработка проекта по заданию Закачика

    Подробнее
  • Индивидуальный
    фасад

    Корректировка фасада по желаниям заказчика

    Подробнее

Комментарии 0

Об этом проекте ещё никто не писал.
Задай вопрос или поделись своим мнением!
Нам не всё равно

Добавить комментарий
Добавление комментария